观音寺长江大桥公安侧边跨混凝土主梁施工工程劳务分包招标公告
一、招标情况简述
1.招标人:湖南路桥建设集团有限责任公司长江分公司
2.本次招标项目观音寺长江大桥公安侧边跨混凝土主梁施工工程劳务分包工程
3.项目地点:湖北省荆州市公安县
4.工程桩号范围:K18+709.404-K19+639.404
5.计划施工时间:2024年9月25日至2026年8月30日
6.本次招标标的金额: 31504707.69元
二、招标内容和范围包括:
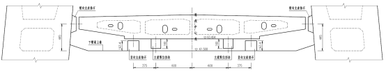
1.招标内容:观音寺长江大桥公安侧边跨混凝土主梁施工工程。公安侧边跨预应力混凝土主梁划分为22类(A~P),共49个节段,节段长为4.35m、6m、6.5m、7.25m、7.5m、7.75m、8m、8.5m。A1~A3节段采用标准横断面,长7.5~8.25m,重量为1020~1109t,端部Q梁段长4.25m,重1061T,其余梁段长6~8.5m梁段重量为1006~1569t。业主及监理对此项工程极为专注,施工质量要求极其高。主梁总体构造图如下图所示:
(1)主梁采用单箱四室断面,全宽41.0m,中心线处梁高4.0m。桥面设置双向2%横坡,由箱梁顶板斜置而成。标准节段顶板厚40cm,平底板厚40cm,斜底板厚40cm,腹板厚55cm;根据受力需要,索塔区及支点区板厚相应增加。主梁标准断面图如下图所示:

(2)斜拉索锚固区设置在梁底,主梁在斜拉索锚固位置(过渡墩、辅助墩及索塔除外)设置横隔板,板厚40cm,顺桥向标准间距为8.0m;在过渡墩、辅助墩、索塔处设置横梁,厚度分别为3.0m、2.5m、3.0m。

(3)主梁设置纵向、横向预应力。其中,纵向预应力分为体内预应力和体外预应力。纵向体内预应力采用φ50mm、φ75mm高强螺纹钢筋,在节段拼装过程中逐段接长。纵向体外预应力采用镀锌无粘结钢绞线成品索,规格为15-19,沿腹板两侧布置。待每跨节段架设完毕、斜拉索张拉到位后,张拉该跨体外束。
(4)主梁横向预应力采用φs15.2mm 高强低松弛钢绞线,布置在顶板、底板、横隔板、横梁内部。横向预应力在节段预制过程中张拉完毕。
2.主要工程量:混凝土节段箱梁预制23771m3、混凝土节段箱梁移梁23771m3、混凝土节段箱梁拼装23771m3、钢筋安装3430610kg,钢绞线张拉、压浆522583kg。
三、投标人资质要求
1.投标人具备相应的资质:施工劳务不分等级及以上 ;
2.投标人注册资金不应低于人民币 800万元;
3.投标人需营业执照、资质证书、安全生产许可证,并在有效期限内;
4.具有独立法人资格及较强的技术力量、经济实力,并在人员、设备等方面具有承担本标段劳务施工的能力;
5.本次招标不接受联合体投标;
6.需在湖南路桥劳务库中单位,首次参与投标的分包单位须通过线下向采购单位提交相关申请资料,办理注册准入。
四、投标邀请书及招标文件的获取
1.符合以上投标资格并有意参加投标的被邀请人,需在“湖南路桥电子招投标采购交易平台”(以下简称“交易平台”)门户网站点击“注册及CA管理”,按要求在平台完成注册、入库后方可接受在线邀请及下载招标文件;投标人办理完成CA数字证书后方可开展全流程电子招采活动,具体办理可咨询门户网站下方电话、微信、QQ。
2.投标人登录系统接受邀请后,需提供以下相关证明资料(加盖单位公章)扫描件上传至电子招投标交易平台:企业法人营业执照副本、企业资质证书副本、安全生产许可证副本、经办人身份证。
3.投标邀请书发出及招标文件下载时间: 2024年9月11日-2024年9月14日:
投标人务必在此时间前,完成在交易平台的注册及入库,否则,投标人无法收到投标邀请函。
五、投标文件递交:
1.投标文件递交截止时间及开标时间: 2024年9月20日 ;
2.递交方式:投标人应使用电子交易平台提供的投标文件制作工具编制投标文件,并按招标文件要求进行加密,在上述规定的投标截止时间前,通过互联网使用CA数字证书登录电子交易平台,将加密的投标文件上传,并保存上传成功后系统自动生成的电子签收凭证,递交时间即为电子签收凭证时间。投标人应充分考虑上传文件时的不可预见因素,未在投标截止时间前完成上传的,视为逾期送达,将不予受理。
六、采购人联系方式
联系人:龙敏
联系电话或其它方式:15386215967 。
七、其他
本项目采用全流程电子招投标,通过“湖南路桥电子招投标采购交易平台”(http://zc.hnrb.cn:5199)开展招投标活动,注册时请先查阅门户网站>帮助中心>操作指南中《投标人(供应商)操作手册》,参与投标过程中遇到的平台问题可咨询门户网站下方技术支持电话、微信、QQ。
招标人:湖南路桥建设集团有限责任公司长江分公司
2024年 9 月 11 日
下一篇:湖南省通泰工程有限公司 机制砂、沥青中下面层碎石材料招标公告 返回列表


